Works
施工事例
ニュアンスカラーが目を引く落ち着く外観デザインの家
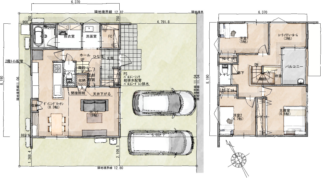
- 建物面積
- 98.75㎡(29.88坪)
- 土地面積
- 141.61㎡(42.85坪)
- 間取り
- 3LDK
グレージュベースの外壁に木目をアクセントにした目を引く外観デザイン。キッチン上部に広がる木目天井が印象的なLDKは、木の温かみ感じる落ち着く空間。照明やデザインにこだわった洗面室など、意匠を凝らしたこだわりの邸宅。
DETAIL
施工事例詳細
| 竣工 | - | 所在地 | - |
|---|---|---|---|
| 土地面積 | 141.61 ㎡ / 42.84 坪 | 建物面積 | 98.75 ㎡ / 29.87 坪 |
| 間取り | 3LDK | 間取り詳細 | - |
| 構造・規模 | - | 設計・監理 | - |









