Works
施工事例
穏やかに暮らす、ジャパンディスタイルの家
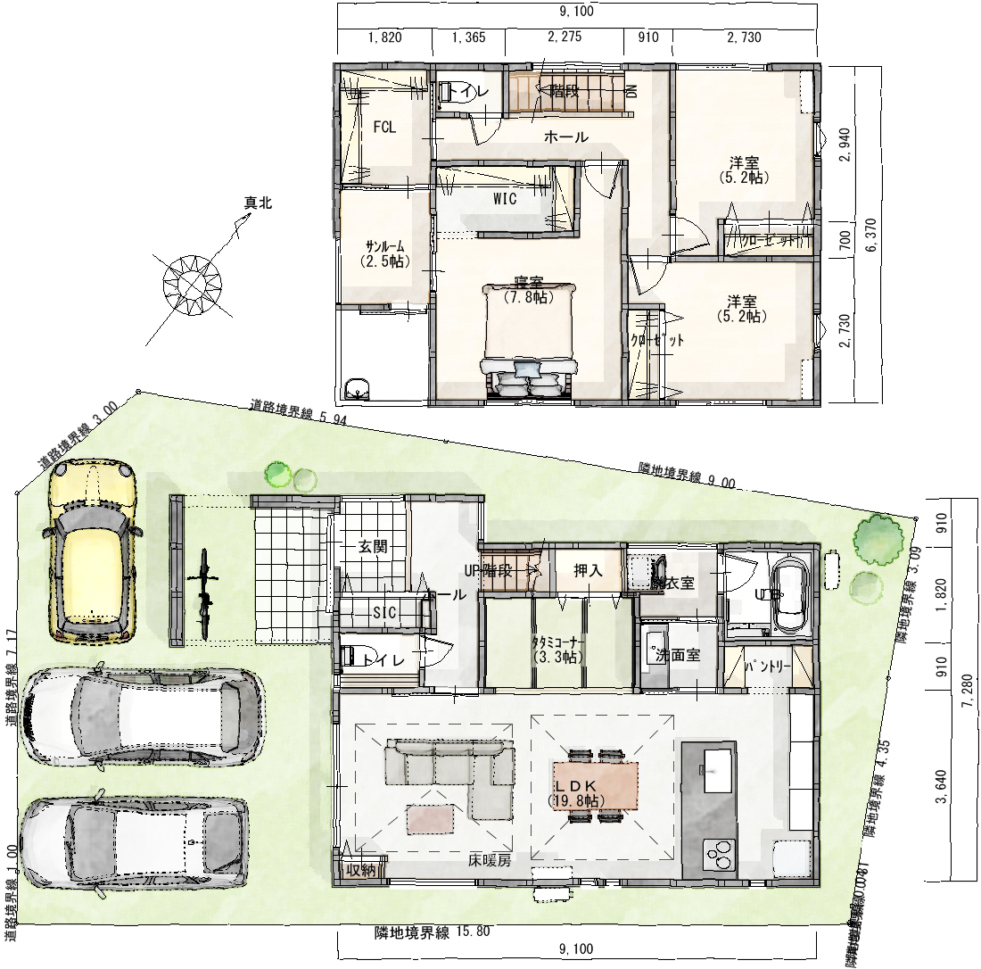
- 建物面積
- 115.10㎡(34.83坪)
- 土地面積
- 147.59㎡(44.66坪)
- 間取り
- 3LDK
落ち着いた色合いでまとめたジャパンディスタイルの家。柔らかな光を落とすペンダントライトと、丸いダイニングテーブルが空間にあたたかさとやさしい雰囲気をつくり出します。
DETAIL
施工事例詳細
| 竣工 | - | 所在地 | - |
|---|---|---|---|
| 土地面積 | 147.59 ㎡ / 44.65 坪 | 建物面積 | 115.10 ㎡ / 34.82 坪 |
| 間取り | 3LDK | 間取り詳細 | - |
| 構造・規模 | - | 設計・監理 | - |















