Works
施工事例
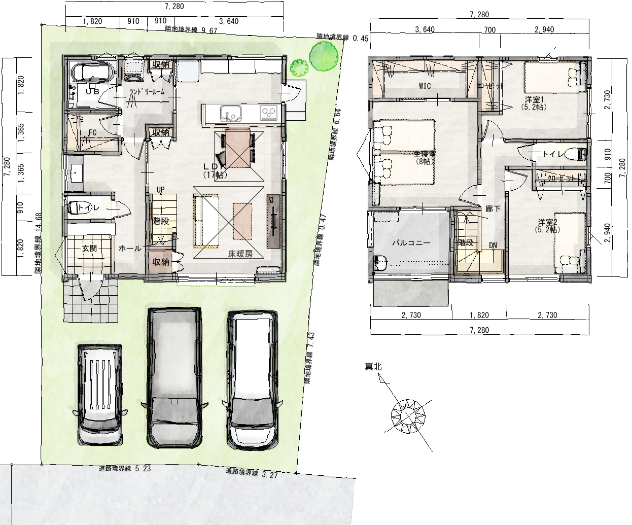
グレージュインテリアの大人カジュアルな住まい。
- 建物面積
- 100.73㎡(30.48坪)
- 土地面積
- 133.74㎡(40.47坪)
- 間取り
- 3LDK
グレー×木目が落ち着くLDK。ファミクロとランドリールームを隣接させ、1階にキッチンと水回りをまとめることで洗濯が一カ所で完結するだけでなく、ほとんどの家事がワンフロアで完了する家事楽な間取り。
DETAIL
施工事例詳細
| 竣工 | - | 所在地 | - |
|---|---|---|---|
| 土地面積 | 133.74 ㎡ / 40.46 坪 | 建物面積 | 100.73 ㎡ / 30.47 坪 |
| 間取り | 3LDK | 間取り詳細 | - |
| 構造・規模 | - | 設計・監理 | - |











