Works
施工事例
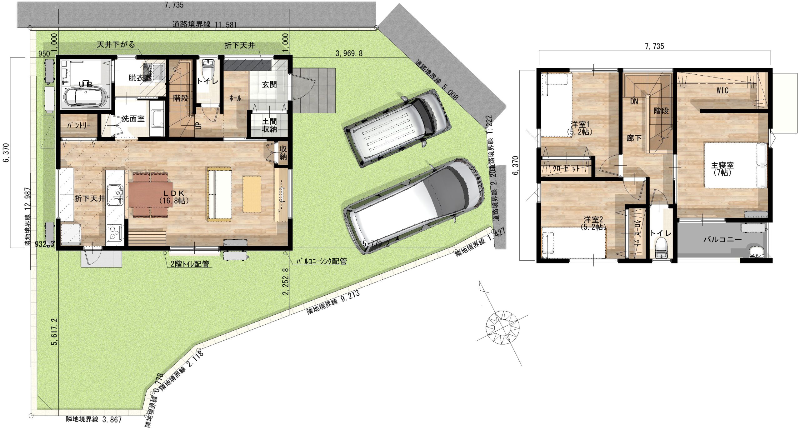
木目調折り下げ天井のオシャレなキッチンがある住まい
- 建物面積
- 94.20㎡(28.5坪)
- 土地面積
- 150.77㎡(45.62坪)
- 間取り
- 3LDK
木目調のアクセントを施したキッチンの折り下げ天井は、LDKをオシャレに仕上げます。
DETAIL
施工事例詳細
| 竣工 | - | 所在地 | - |
|---|---|---|---|
| 土地面積 | 150.77 ㎡ / 45.61 坪 | 建物面積 | 94.20 ㎡ / 28.50 坪 |
| 間取り | 3LDK | 間取り詳細 | - |
| 構造・規模 | - | 設計・監理 | - |
Works
施工事例
木目調のアクセントを施したキッチンの折り下げ天井は、LDKをオシャレに仕上げます。
施工事例詳細
| 竣工 | - | 所在地 | - |
|---|---|---|---|
| 土地面積 | 150.77 ㎡ / 45.61 坪 | 建物面積 | 94.20 ㎡ / 28.50 坪 |
| 間取り | 3LDK | 間取り詳細 | - |
| 構造・規模 | - | 設計・監理 | - |