Event
イベント
公開日:2025/10/27
開催日: 11月9日まで
開催場所: 加古川市野口町
【OPEN HOUSE】加古川市「長砂13期8号地」モデルハウス見学会!補助金対象
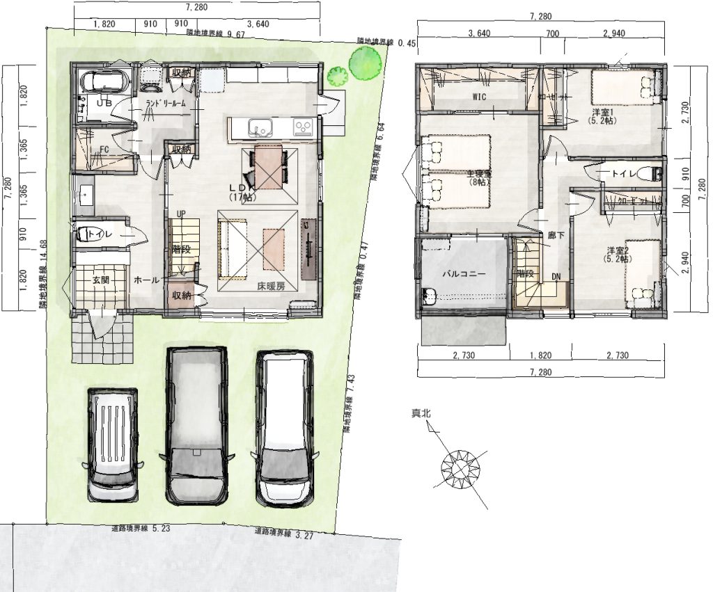
★補助金80万円対象・モデルハウスOPEN・見学ご予約受付中!「長砂13期8号地」:3,680万円(税込)3LDK、土地面積133.74 ㎡ / 40.46 坪、建物面積100.73 ㎡ / 30.47 坪 ◆制振装置『MAMORY』搭載◆ランドリールーム◆ファミクロ◆LD床暖房◆3台並列駐車◆学校区:野口南小学校・中部中学校

制振ダンパー『MAMORY』、床暖房、ランドリールーム、ファミクロ、独立洗面など、リビング階段など、トレンドの人気仕様や憧れのスペックを取り入れたハイスペックな住まいです。
ファミクロとランドリールームを隣接させ、1階にキッチンと水回りをまとめました。そのため、洗濯が一カ所で完結するだけでなく、ほとんどの家事がワンフロアで完了!
またSNSなどで人気沸騰中の洗面カウンター『スマートサニタリーU』を採用しているなど、デザイン性の高さも注目のポイントです。
【モデルハウスの見どころ】







●制振装置『MAMORY』搭載!地震の揺れを吸収し、建物のダメージを軽減。
●リビングダイニングは足元からじんわり温まる床暖房付き。
●ランドリールームとファミクロがある水回りをキッチン横に配置して、洗濯が1カ所で完結、家事をワンフロアでこなせる住まいに
●玄関ホールに配置した独立型洗面スペース。
来客時も気兼ねなく入浴や洗濯ができ、身支度が集中する朝の時間帯も混み合いません。玄関直通で帰ってすぐ手洗いができるのも◎
●洗面化粧台は「まるで造作洗面」とSNSで話題のAICA「スマートサニタリーU」。トイレは電球の陰影がおしゃれなペンダントライト配置。
●キッチンの横に水回りと勝手口があり、さらにリビングイン階段で2階への移動もスムーズな超効率的家事動線。家中をぐるぐる回遊できます。
●水栓付きのインナーバルコニー。雨が吹き込みにくく、外干しも快適です。
●3台並列駐車が可能な庭を確保。
●アプローチには宅配BOX&立水栓を配置。
【分譲地&周辺環境】





●分譲地内公園も設置された全20区画の大型分譲地。50坪以上の区画もあります。
●山陽電鉄「浜の宮」駅まで徒歩20分(自転車7分)
●マルアイ野口店まで徒歩7分、ダイレックス加古川野口店まで徒歩12分
●ヤクルトキッズスクール 加古川つばめ保育園まで徒歩6分、うさぎ保育園まで徒歩9分、加古川エンゼル保育園まで徒歩10分、野口南幼稚園まで徒歩12分、野口南小学校まで徒歩10分、中部中学校まで徒歩9分
●加古川市役所まで徒歩18分(自転車6分)
●加古川野口坂井簡易郵便局まで徒歩13分
●分譲地内公園以外にも長砂公園(徒歩4分)、南ケ市公園(徒歩6分)など周辺に公園や緑が豊富です
【物件概要】
| 所在地 | 加古川市野口町長砂462-7 | 建物面積 | 100.73 ㎡ / 30.47 坪 |
|---|---|---|---|
| 間取り | 3LDK | 土地面積 | 133.74 ㎡ / 40.45 坪 |
| 建ぺい率/容積率 | 60%/200% | 都市計画/用途地域 | 第一種中高層住居専用地域 |
| 交通/地域地区 | かこバス「良野東口」バス停より徒歩約6分 山陽電鉄 浜の宮駅より自転車約11分 |
|---|---|
| 設備 | 電気、上水道、下水道、都市ガス |
| 最寄駅 | – |
| 学区 | 加古川市・野口南小学校・中部中学校 |
| 取引態様 | 販売代理 |
| 備考 | 第2-1種高度地区(高さ制限12m) |
モデルハウス・分譲等の見学ご予約は、下記までご連絡ください
受付時間 10:00~17:00
明石大久保店0120–09–1001
電話・メール、もしくは下記フォームより
お気軽にお問い合わせください
Event Contact Form
イベントお問い合わせフォーム
下記のフォームより、お気軽にお問い合わせください。
担当者よりご記入いただきましたメールアドレス宛に返信させていただきます。

