Event
イベント
公開日:2025/10/14
開催日: 10月26日まで
開催場所: 加古川市野口町
【NEW OPEN】加古川市「野口1号地」モデルハウス新価格発表!
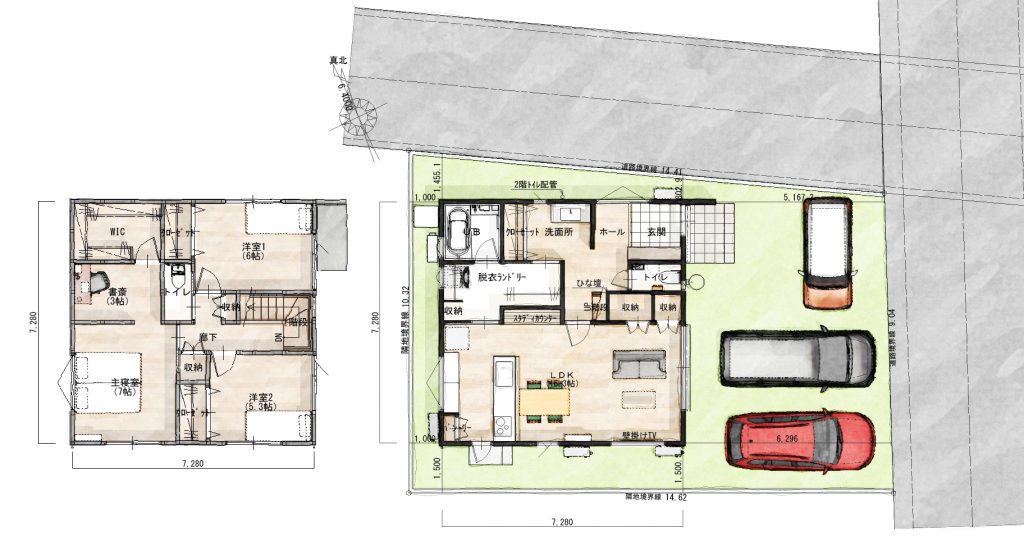
★新モデルハウス・加古川市「野口1号地」見学会ご予約受付中:3,750万円(税込)3LDK、土地面積140.16 ㎡ / 42.39 坪、建物面積140.16 ㎡ / 42.39 坪◆角地◆3台駐車◆書斎スペース&大型WIC付寝室◆ランドリースペース◆制震ダンパー『MAMORY』搭載◆幼稚園&小・中学校まで徒歩5分圏内◆学校区:野口小学校3分・中部中学校5分

\憧れのランドリースペース、寝室書斎、独立洗面、スタディスペースが全部付!/
小・中学校、幼稚園がいずれも徒歩5分圏内の子育て環境に、”みんなの欲しい”をフル搭載した新モデルハウスが登場しました。
制振装置付きで、見えない部分も高性能。
2台並列駐車+1台分の駐車スペースを備えた庭に、立水栓や宅配BOXも装備しています。
ぜひこの機会に、ご来場ください♪
\今ならご予約の上、ご来場でQUOカード2,000円分をプレゼント/
【野口1号地の見どころ】











●脱衣ランドリールームには室内物干しや収納をたっぷり配置。浴室乾燥機も付いているので、家族分の洗濯物を余裕で部屋干しできます。洗面と別々なので来客時も気兼ねなく洗濯や入浴が可能です。
●ダイニング横にはキッチンから目が届くスタディスペースを配置。ロングカウンターに専用の照明や複数の電源も用意しているので快適に使えます。
●玄関のそばに独立型の洗面台を設けた人気の間取り。洗面横にミニ・ファミクロがあるので、外出時の身支度や帰宅時の着替えもスムーズです。
●主寝室には書斎スペースと大型のウォークインクローゼットを配置。
●制震装置『MAMORY』搭載。耐震×制震のダブルの守りで万が一に備えます。
●玄関には姿見付きのトール収納を用意。玄関正面にはおしゃれなニッチも設えました。
●キッチンは『オフェリア』、バスルームは『リラクシア』。いずれも人気のタカラスタンダードです。
●キッチン→脱衣ランドリー+バスルーム→洗面→玄関ホール→LDKを回遊できて、生活動線も家事動線も快適。キッチン横には勝手口もあります。
●2台並列駐車+1台分の駐車スペースを確保。角地なので、車の出し入れがスムーズです。
【分譲地&周辺情報】


●野口幼稚園まで徒歩5分、うさぎ保育園まで徒歩9分、野口小学校まで徒歩3分、中部中学校まで徒歩5分。通園・通学がスムーズで子育て世代にうれしい環境です。
●ディスカウントストアのダイレックス加古川野口店まで徒歩6分、イオンタウン野口まで徒歩14分、マルアイ野口店まで徒歩12分で、用途に合わせて買い物施設を選べます♪
●加古川市役所や市民会館まで自転車なら7分、車なら6分程度です。
車で8分、自転車で11分程度の場所には国宝建築・鶴林寺本堂に隣接した鶴林寺公園が!
お花見スポットとして知られる他、SL(蒸気機関車)が展示されている公園としても有名です。
モデルハウス見学がてら、ご家族で立ち寄ってみては?
【物件概要】
| 所在地 | 加古川市野口町野口字南屋敷96-1 | 建物面積 | 105.98 ㎡ / 32.05 坪 |
|---|---|---|---|
| 間取り | 3LDK | 土地面積 | 140.16 ㎡ / 42.39 坪 |
| 建ぺい率/容積率 | 60%/200% | 都市計画/用途地域 | 市街化区域/第1種住居地域 |
| 交通/地域地区 | 神姫バス「野口」バス停より徒歩約3分 |
|---|---|
| 設備 | 関西電力、公共上下水道、側溝 |
| 最寄駅 | – |
| 学区 | 野口小学校・中部中学校 |
| 取引態様 | 売主 |
| 備考 | – |
モデルハウス・分譲等の見学ご予約は、下記までご連絡ください!
今ならご予約の上ご来場でQUOカードをプレゼント

受付時間 10:00~17:00
姫路東店 0120–56–2772
電話・メール、または下記フォームよりお申し込みください
Event Contact Form
イベントお問い合わせフォーム
下記のフォームより、お気軽にお問い合わせください。
担当者よりご記入いただきましたメールアドレス宛に返信させていただきます。

