Event
イベント
公開日:2025/10/6
開催日: 10月19日まで
開催場所: 加古郡播磨町
【OPEN HOUSE】加古郡「播磨町古田1号地」モデルハウス見学会
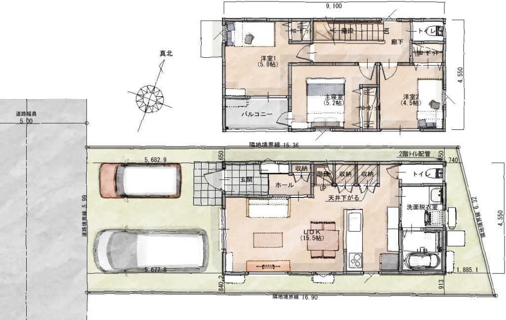
★「播磨町古田1号地」モデルハウス見学会ご予約受付中◆2,580万円(税込)/ 3LDK/土地面積96.39 ㎡ / 29.15 坪、建物面積79.07 ㎡ / 23.91 坪◆山電「別府」駅まで徒歩約15分◆リビング階段◆2台駐車◆学区:播磨西小学校・播磨中学校

シンプルな動線で家事がはかどる住まい!
食洗機、浴室暖房乾燥機m宅配BOXなど家事をラクにする設備仕様も整っています。
ぜひ見学にお越しください。
【モデルハウスの見どころ】





●キッチン背後に水回りをまとめ、家事動線をコンパクトに。
リビング階段で2階への動線も短縮され、家事を時短できます。
●バスルームには浴室暖房乾燥機、キッチンには食洗機付きで欲しい設備仕様をしっかり網羅。
●適材適所の収納を配置。
コンセント付きの階段下収納や、洗濯機置き場の可動棚など、使い場所に合わせた収納スタイルです。
●南向きのバルコニーは日当たりが良く、物干し場にぴったり。
雨が吹き込みにくいインナーバルコニータイプです。
●家族のコミュニケーションを促進するリビング階段付き。
●並列2台駐車可能
●宅配BOX付きで待ち受け家事もなくなります。
【分譲地&周辺環境】
近隣に学校、スーパー、医療施設などがそろった便利で快適な環境。
子育て世代も安心して暮らしやすいエリアです。
●山陽電車「別府」駅まで徒歩15分。
●播磨西こども園まで徒歩7分、播磨西小学校まで徒歩8分、播磨中学校まで徒歩15分。
通園・通学がスムーズなエリアです。
●マルアイ本荘店まで徒歩13分。
ショッピングモールのアリオ加古川も自転車8分で程よく便利な環境です。
●古田西公園まで徒歩5分。
徒歩8分の石ケ池公園は、園内にアスレチック遊具、喫茶店、授乳室、水遊びスペース、トイレ、駐車場などもあり遊び場に困りません。新幹線の線路沿いで子どもたちに大人気です。
\新幹線も見える石ケ池公園はお子さまに大人気!モデルハウス見学会がてら立ち寄ってみては?/
【物件概要】
| 所在地 | 加古郡播磨町古田3丁目374-37 | 建物面積 | 79.07 ㎡ / 23.91 坪 |
|---|---|---|---|
| 間取り | 3LDK | 土地面積 | 96.39 ㎡ / 29.15 坪 |
| 建ぺい率/容積率 | 60%/150% | 都市計画/用途地域 | 第二種低層住居専用地域 |
| 交通/地域地区 | 山陽電鉄 別府駅より徒歩約15分 |
|---|---|
| 設備 | – |
| 最寄駅 | 山陽電鉄 別府駅 |
| 学区 | 播磨町・播磨西小学校・播磨中学校 |
| 取引態様 | 販売代理 |
| 備考 | 建築基準法第22条指定区域、埋蔵文化財包蔵、道路斜線、隣地斜線、日影規制、絶対高さ10m |
モデルハウス・分譲等の見学ご予約は、下記までご連絡ください!
受付時間 10:00~17:00
明石大久保店0120–09–1001
電話・メール、または下記フォームより
お気軽にお問い合わせください。
Event Contact Form
イベントお問い合わせフォーム
下記のフォームより、お気軽にお問い合わせください。
担当者よりご記入いただきましたメールアドレス宛に返信させていただきます。

