Event
イベント
公開日:2025/9/1
開催日: 9月15日まで
開催場所: 加古郡播磨町
【OPEN HOUSE】加古郡播磨町「本荘1号地・2号地」モデルハウス見学会!
★モデルハウス2棟同時公開!加古川播磨町「本荘1号地」(4LDK,3,180万円(税込))「本荘2号地」(4LDK,3,250万円(税込))/見学受付中●山電 「播磨町」駅より徒歩9分、1km圏内に学校・スーパー・病院、がそろった好立地●学校区:播磨小学校・播磨南中学校

山電電鉄「播磨町」駅より徒歩9分の好立地で、異なるタイプのモデルハウスを2棟同時に公開中です。
東向きの1号地・南向きの2号地、どちらも日当たり良好で、日中の照明は年中不要。冬場の暖房効率も良く、省エネなお家です。
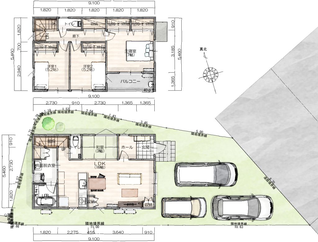
【本荘1号地】



- キッチンのそばに水回りとリビング階段があり、家事動線も2階への洗濯動線もスムーズ。
- 3帖のワイドな洗面所は、収納も完備しているため、より広々使えます。
- 全室収納付きなのはもちろん、2階廊下にも大きめの物入を配置。
- 日当たりの良い南向きバルコニーは雨風が吹き込みにくいインナーバルコニータイプ。
シンクが付いているので、お掃除がラクラクです。 - 光降り注ぐ16帖の南向きLDKは、家具配置がしやすいストレートタイプ
- キッチンから目が届く3帖和室やリビング階段が、家族のコミュニケーションを促進します。
- キッチンはオフェリア、洗面はエリシオ、バスルームはリラクシア。
いずれもタカラスタンダードで食洗器や高断熱浴槽、浴室暖房乾燥機など充実の機能を装備しています。 - 1階はタンクレストイレ、2階はシャワートイレで、いずれも節水機能付きです。
- 3台駐車可能。
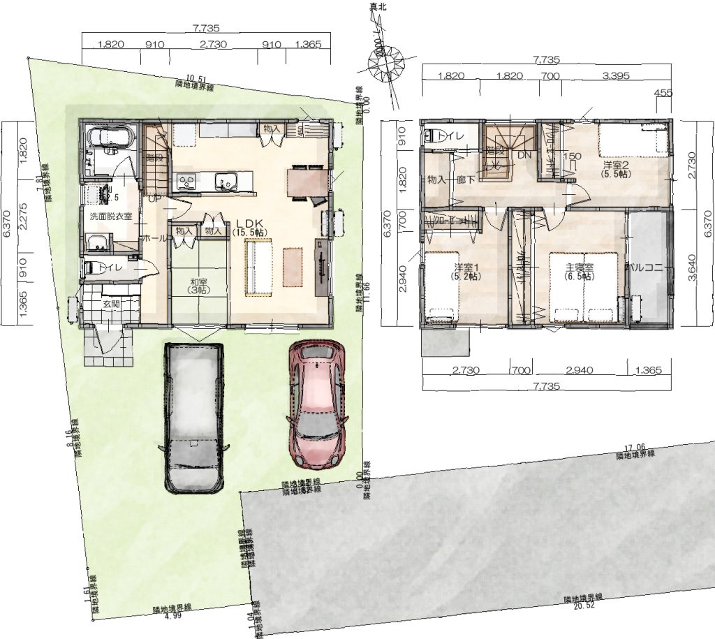
【本荘2号地】



- キッチン横にスタディスペースや家事コーナーとしても使えるワークスペースを配置。
- 全室収納付きなのはもちろん、2階廊下にも大きめの物入を配置。
- 日当たりの良い南向きバルコニーは雨風が吹き込みにくいインナーバルコニータイプ。
- キッチンから目が届く3帖の和室は、お子さまの足び場や来客スペースにピッタリ。
- 2台駐車可能。
- キッチンはオフェリア、洗面はエリシオ、バスルームはリラクシア。
いずれもタカラスタンダードで食洗器や高断熱浴槽、浴室暖房乾燥機など充実の機能を装備しています。 - トイレはINAXのベーシア。1階はタンクレストイレ、2階はシャワートイレで、いずれも節水機能付きです。
【分譲地&周辺情報】

●山電「播磨」駅まで徒歩9分。有馬高砂線(718号線)沿いで、車でのアクセスもスムーズです。
●播磨保育園まで徒歩6分、播磨幼稚園まで徒歩11分、播磨小学校まで徒歩9分、播磨南中学校まで徒歩20分。通学通園がスムーズです。
●マルアイ本荘店まで徒歩9分、ローソン播磨東本荘店まで徒歩2分、セブンイレブン播磨本荘店まで徒歩7分、コープ播磨まで徒歩16分。買物便利な環境です。
●播磨本荘郵便局まで徒歩8分、播磨町役場まで徒歩8分、播磨町立図書館まで徒歩7分。
●宮北公園まで徒歩4分。さらに、ジョギングコースや健康器具、じゃぶじゃぶ池などがある浜田公園、芝生広場や多目的広場のあるあえのはま広場がいずれも徒歩7分で、休日に親子でたっぷり遊べます。
●神前病院まで徒歩4分。
【物件概要】
| 所在地 | 加古郡播磨町本荘1丁目193-5、193-6 | 建物面積 | 94.39 ㎡ / 28.55 坪 95.81 ㎡ / 28.98 坪 |
|---|---|---|---|
| 間取り | 4LDK | 土地面積 | 142.18 ㎡ / 43.01 坪 140.42 ㎡ / 42.48 坪 |
| 建ぺい率/容積率 | 60%/200% | 都市計画/用途地域 | 第二種住居地域 |
| 沿線交通 | – |
|---|---|
| 交通/地域地区 | 山陽電鉄 播磨町駅まで徒歩約9分 JR土山駅まで自転車約11分 神姫バス「本荘東」バス停まで徒歩約2分 |
| 設備 | 電気、上水道、下水道、プロパン |
| 最寄駅 | 山陽電鉄 播磨町駅 |
| 学区 | 播磨小学校・播磨南中学校 |
| 取引態様 | 販売代理 |
| 備考 | 第三種高度地区 |
モデルハウス・分譲等の見学ご予約は、下記までご連絡ください
受付時間 10:00~17:00
明石大久保店 0120-09-1001
電話・メール、もしくは下記フォームよりお気軽にお問い合わせください
Event Contact Form
イベントお問い合わせフォーム
下記のフォームより、お気軽にお問い合わせください。
担当者よりご記入いただきましたメールアドレス宛に返信させていただきます。

