Event
イベント
公開日:2025/1/27
【新価格モデルハウス】高砂市「北浜町北脇4期4号地」見学会
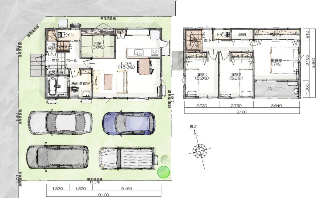
★新価格モデルハウス「北浜町北脇4期4号地」:2,880万円→2,680万円の大幅PRICE DOWN/4LDK(土地面積46.95 坪/建物面積 坪28.55 坪)
●4台駐車可能●土間収納●学校区/北浜小学校・鹿島中学校

山陽電車「大塩駅」まで徒歩10分。徒歩圏に教育機関や買い物施設、病院などがすべてそろった新築4LDKが200万円のプライスダウン!
この機会にぜひ、見学にお越しください♪

【現在のお家賃とお比べください!】
2,680万円借入/金利0.445%/40年返済の場合
ボーナス支払0円 月々62,152円
駅徒歩10分圏内、4LDKの新築一戸建てが月々6万円台前半で!
【モデルハウスの特長】


- メンテナンス性に優れた総二階のシンプルモダンな住まい。
- 材木を使用したカウンターや棚で、木の温もりを感じられる住空間に。
- 2階廊下にも収納を設けており、季節物の衣類を片付けたり、ご家族兼用でお使いいただけます◎
- 大容量シューズクロークと土間収納で、散らかりがちな玄関もすっきりとした印象に♢
- 急な来客でも安心の、4台分駐車可能の広いお庭です!
- 約2.5帖分の洗面脱衣室。壁面を有効活用して収納棚を設置!
- 広いお庭は日当りや風通しが良くなり、家庭菜園やガーデニングを楽しめます♪
【分譲地&周辺環境】


●山電 大塩駅まで徒歩約10分
●北浜保育園まで徒歩5分、北浜小学校まで徒歩4分
●マルアイ大塩店まで徒歩8分、セブンイレブンまで徒歩7分
●医療法人社団汐咲会井野病院まで徒歩14分
●道幅が広く、見通しのいいタウン内道路。
さらに近隣も交通量が少ない住宅街なので登下校も安心です◎
【物件概要】
●物件名:北浜町北脇4期4号地
●所在地 : 高砂市北浜町北脇
●交通: 大塩駅より徒歩約10分
●学校区 : 北浜小学校・鹿島中学校
●価格:2,880万円
●土地面積:155.21 ㎡ / 46.95 坪
●建物面積: 94.39 ㎡ / 28.55 坪
●間取り:4LDK
●取引形態: 販売代理
●備考:第二種高度地区、高さ制限15m
モデルハウス・分譲等の見学ご予約は、下記までご連絡ください
受付時間 10:00~17:00
姫路中央店☎ 0120–09–1001
電話・メール、もしくは下記フォームよりお気軽にお問い合わせください
Event Contact Form
イベントお問い合わせフォーム
下記のフォームより、お気軽にお問い合わせください。
担当者よりご記入いただきましたメールアドレス宛に返信させていただきます。

